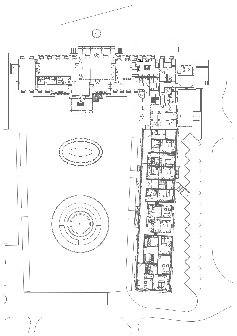
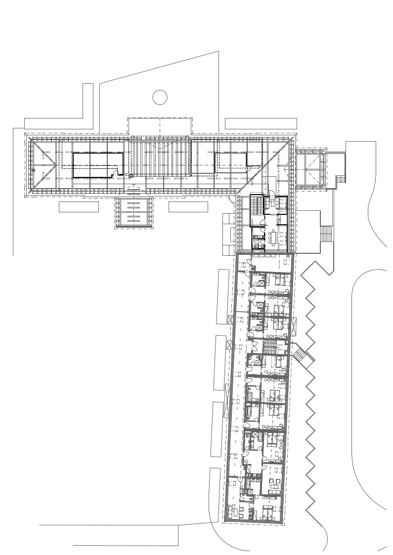
Rekonštrukcia kaštieľa Klobušice
| Názov stavby: | Rekonštrukcia kaštieľa Klobušice |
|---|---|
| Miesto: | Klobušice |
| Zastavané plochy: | 1.950,50 m² |
| Stupeň: | Projekt pre stavebné povolenie |
| Názov stavby: | Rekonštrukcia kaštieľa Klobušice |
|---|---|
| Miesto: | Klobušice |
| Zastavané plochy: | 1.950,50 m² |
| Stupeň: | Projekt pre stavebné povolenie |